화이트&우드의 코지 하우스

갤러리

정보

공사 경로
스페이지 기타 플랫폼 지인 소개 기타
세대 유형
아파트(계단)
준공 년도
2012년
지역
서울시 강남구
입주일
2024.06

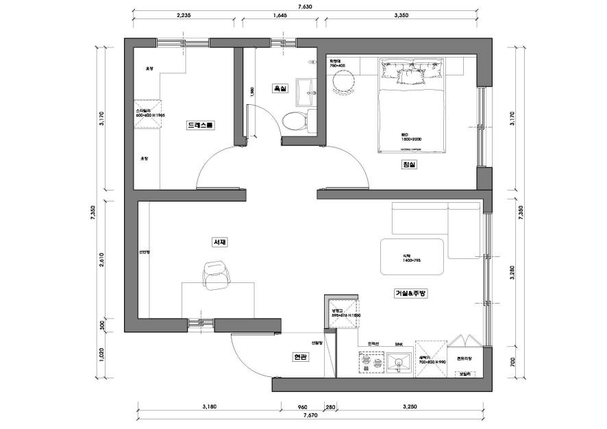
개요

공사 범위
선택
공급 평수
35평
최종 견적
6,800만원
평당 가격
195만원
공사일
35일

공사

공사 항목
확장 에어컨 샷시
스타일
내추럴
스펙
중급
화이트를 기반으로 티크 포인트로 공간을 최대한 모던하고 심플하지만 따뜻하게 구
목록 보기